ویرایشگر ساختار کف مناطق گرمایش/سرمایش
| Product | InstalSystem 5 |
| Type of article | FUNCTION AND TOOL |
| Source for translation | 2020-04-04 |
تعریف
این مقاله امکان ویرایش دادههای ساختاری، حرارتی و عملیاتی مناطق گرمایش/سرمایش و پارتیشنهای سازهای که برای آنها تعریف شده است را شرح میدهد.
وبینار
میتوانید فیلم وبینار مربوط به عملکرد شرح داده شده در این مقاله را در قسمت زیر مشاهده کنید:
موقعیت قرارگیری در نرم افزار
ویرایشگر ساختار کف مناطق گرمایش/سرمایش در این موقعیت واقع شده است: در جدول دادهها پس از تیک زدن منطقه گرمایش / سرمایش و سپس چک کردن در لیست کشویی ساختار کف گرمایشی \ ايجاد ديوار حرارتی \ ساخت سقف گرمایش و سرمایش.

مثالهایی از نحوه کاربرد
ارائه دادهها در ویرایشگر ساختار کف مناطق گرمایش/سرمایش
- فیلد ساختار کف گرمایشی \ ايجاد ديوار حرارتی \ ساخت سقف گرمایش و سرمایش ، ضخامت کلی منطقه گرمایش / سرمایش و همچنین مقاومت حرارتی کل کف را نشان میدهد .
- پس از فعال کردن ویرایشگر, کاربر به دادههای خاصی دسترسی پیدا میکند که بر اساس آن مقادیر کلی محاسبه میشود:
بعد از تغییر دادهها در پنجره ویرایشگر, لازم است که محاسبات پروژه را مجددا اجرا کنید تا تمامی مقادیر نیز آپدیت شوند.
ویرایش ساختار کف در مناطق گرمایش/سرمایش
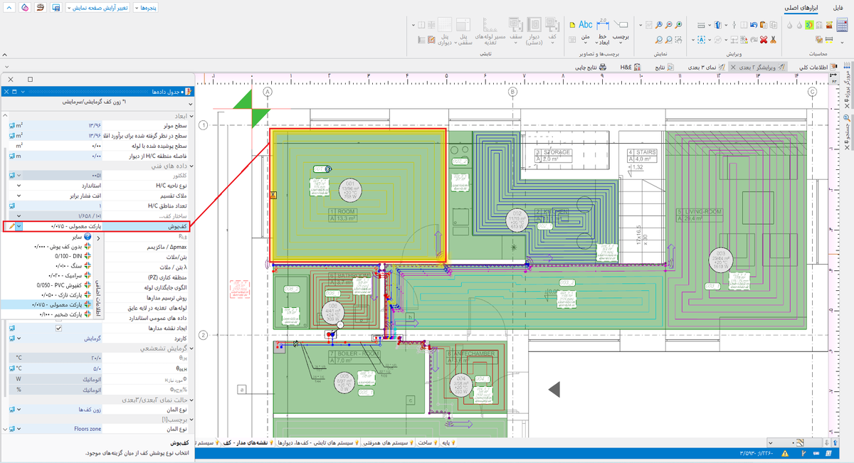
پوشش

- کفپوش پیش فرض را میتوانید در قسمت داده های عمومی بر اساس نوع اتاق (کاربری اتاق) تعریف کنید.

7. کفپوش پیش فرض - پوشش کف را میتوانید برای هر منطقه گرمایش / سرمایش نیز تغییر دهید.

8. پوشش
ضخامت کلی بتن/ملات

ضخامت کلی بتن/ملات, در صورت تنظیم خودکار , ممکن است بر اساس مقدار حداكثر بار كاري مجاز (), و در محدوده مجاز تعیین شده توسط تولیدکننده، تغییر کند. در واقع کاربر ممکن است در محدوده مجاز تعیین شده توسط تولیدکننده و نیز با در نظر گرفتن همه دادههای دیگر سیستم، ضخامت را تغییر دهد.
ضخامت بتن/ملات روی لوله Su همیشه به طور خودکار توسط نرم افزار محاسبه میشود, و نمیتوان آن را مستقیما به صورت دستی تغییر داد .
پنل سازه اي

- کاربر ممکن است پنل سازهای را تغییر دهد، اگر:
- بیشتر از یک نوع پنل سازهای برای یک روش بستن مشخص وجود داشته باشد.

11. پنل سازه اي - انتخاب داده های عمومی - در جدول دادهها مربوط به هر منطقه گرمایش / سرمایش, کاربر فیلد داده های عمومی استاندارد را تیک زده است - در غیر این صورت، این فیلد فقط در وضعیت خودکار و بدون امکان ویرایش در دسترس است.

12. پنل سازه اي - انتخاب در جدول دادهها
انتخاب عایق

- اتوماتيك
نرم افزار، عملیات انتخاب عایق برای پنل سازهای را با در نظر گرفتن حداقل مقاومت طبق استاندارد EN 1264: 1:2011 2:2013 3,4:2009 5:2008 و نیز با توجه به دماي سمت ديگر (فضای زیرین)، انجام میدهد.
14. انتخاب عایق - Auto - دستی
میتوان عملیات انتخاب عایق را از روی کاتالوگ انجام داد و یا اینکه لایههای عایق خاص مدنظر خود را (حداکثر 5 لایه) انتخاب و تعریف نمود.
15. انتخاب عایق - دستی
نقشه مقطع سازه
کاربر ممکن است نحوه ارائه نقشه مقطع سازه را تغییر دهد.

ویرایش دادههای پارتیشنهای سازهای و گرمایشی

- این برنامه عناصری را از میان تعاريف جدارهها در محدوده محاسبات حرارتی ساختمان انتخاب نمیکند, و باید به صورت دستی اصلاح شود.
- از داده های عمومی, فقط مقدار ضخامت اسلب پایینی, dflo,l ترسیم میشود.

18. Lower slab thickness, dflo,l


